188比分足球捷报|美洲杯赛程|足球胜平负比分计算器|球探足球比分即时比分007,竞彩足球计算器胜平负玩法,篮球比分网即时比分一一捷报比分,足球比

安徽淮南市壽縣綠色東方新能源有限公司“2020.5.6”較大中毒事故調(diào)查報告

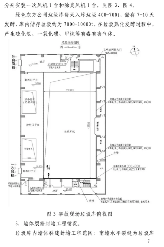
安徽淮南市壽縣綠色東方新能源有限公司“2020.5.6”較大中毒事故調(diào)查報告

image.png

image.pngimage.pngimage.pngimage.pngimage.pngimage.pngimage.pngimage.pngimage.pngimage.pngimage.pngimage.pngimage.pngimage.pngimage.pngimage.pngimage.pngimage.pngimage.pngimage.pngimage.pngimage.pngimage.pngimage.pngimage.png